Social Corridors
Advised by Christina Hansen, Lars Graebner
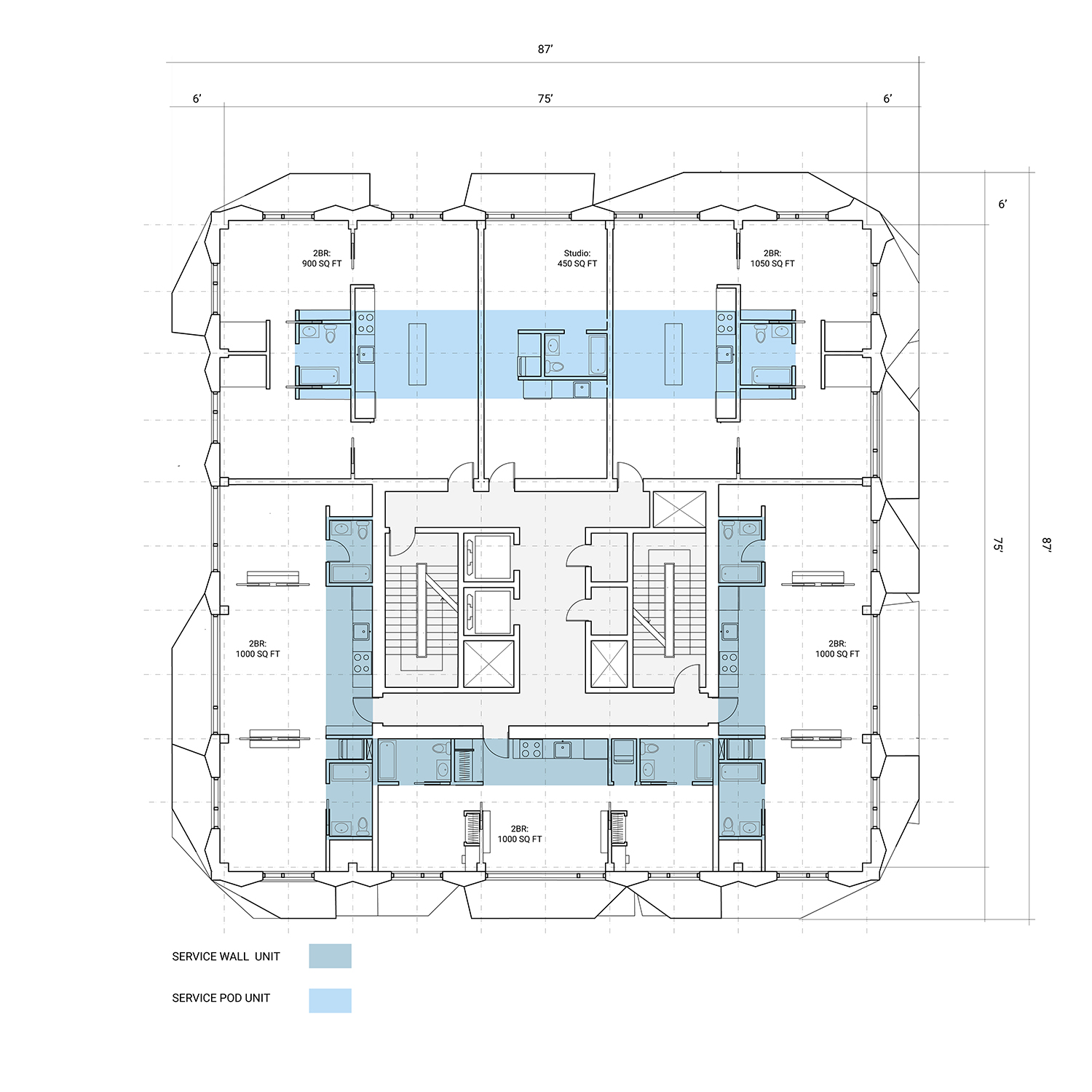
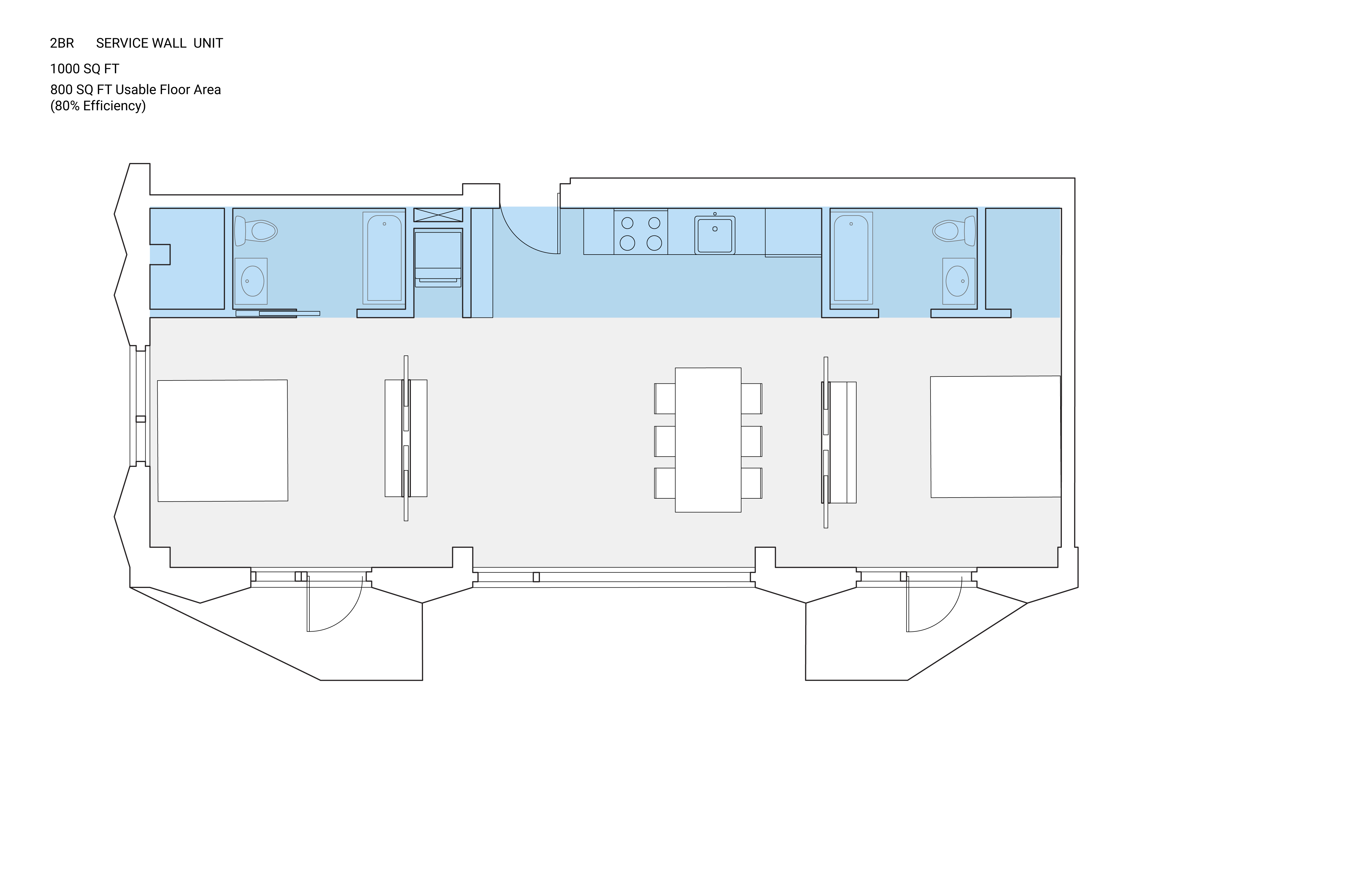
Social Corridors is a high density housing and urban renewal proposal for the detroit greenways project.
Advised by Christina Hansen, Lars Graebner
Social Corridors is a high density housing and urban renewal proposal for the detroit greenways project.












